Menu
Město Heřmanův Městec

PUMPTRACK

Pumptrack

Na nové oranžové hřiště by měl v příštím roce navázat pumptrack. Pokud zastupitelstvo města schválí jeho zařazení do rozpočtu pro rok 2026, dojde k realizaci záměru.
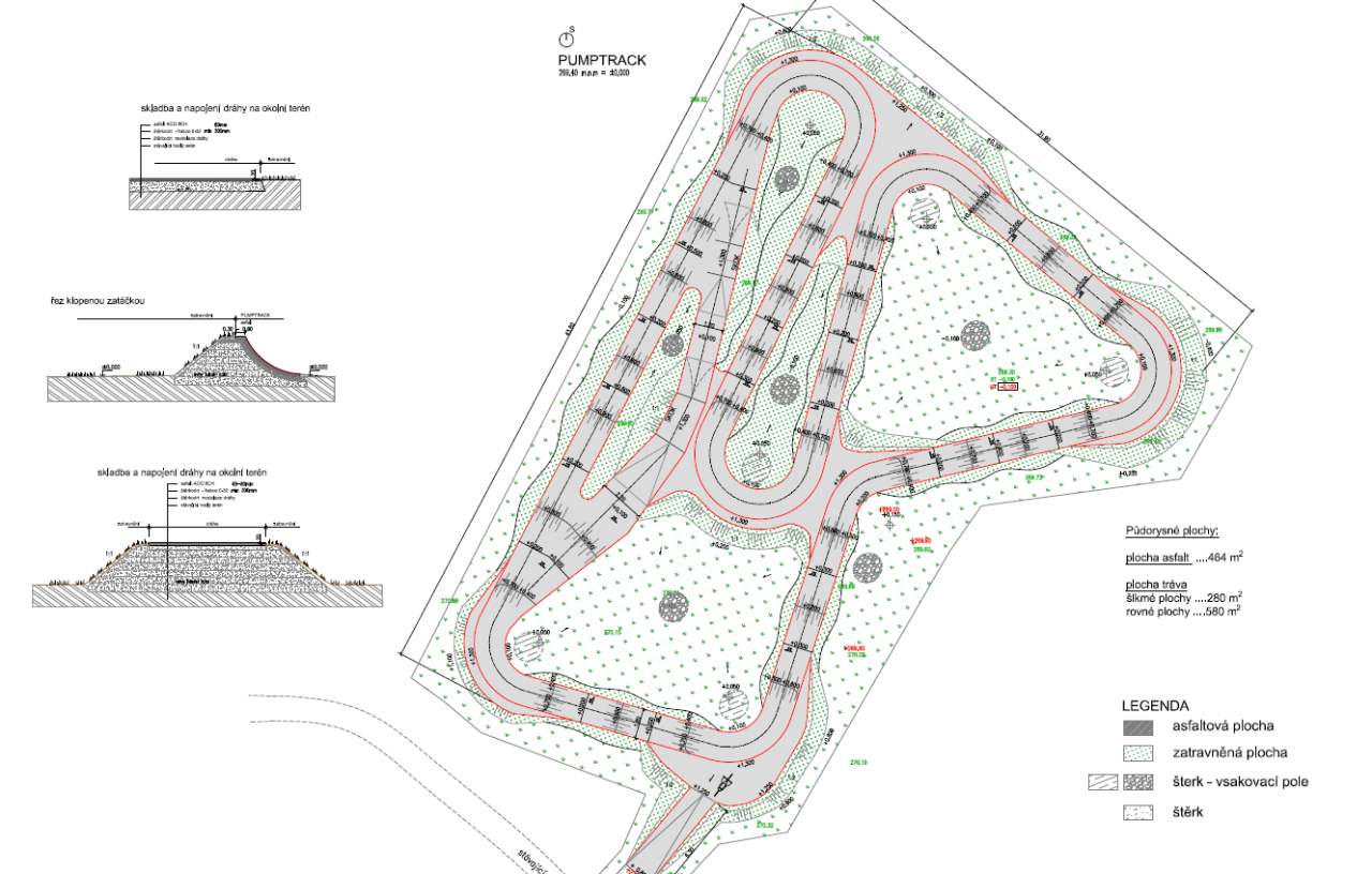
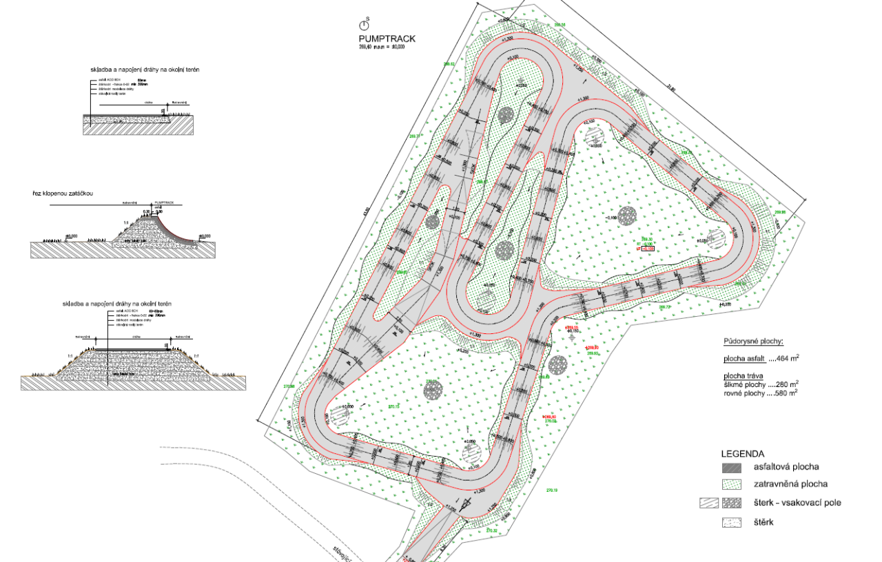
Pumptracková dráha bude sloužit široké veřejnosti jako sportoviště i rekreační plocha.

Je navržena pro jízdu na kolech, koloběžkách, skateboardech i bruslích. Umístěna bude za sportovní halou na volném prostranství, v prostoru o maximálních rozměrech 44 × 32 metrů, s celkovou délkou dráhy 198 metrů.

Povrch dráhy bude asfaltový, s vlnami a klopenými zatáčkami o výšce 0,4 až 1,3 metru. Na základě předložené dokumentace již bylo v souladu se stavebním zákonem zahájeno řízení o povolení záměru.

Aleš Jiroutek, starosta města

Datum vložení: 4. 11. 2025 11:25
Datum poslední aktualizace: 4. 11. 2025 13:38
Autor: Lucie Kratochvílová

Kalendář

Listopad2025
Po Út St Čt So Ne
27 28 29 30 31 1 2
3 4 5 6 7 8 9
10 12 13 14 15 16
17 18 19 20 21 22 23
24 26 27 28 29 30

Kruh bezpečí

ČEZ DISTRIBUCE - Odstávky

ČEZ Distribuce – Plánované odstávky

Oznámenzní

MěÚ

Heřmanův Městec

Dětské hřiště za Základní uměleckou školou je až do odvolání uzavřeno. Děkujeme za pochopení.

Doporučujeme navštívit

Mohlo by Vás zajímat

nahoru